工程案例
含磷废水一体化处理设备
案例详情
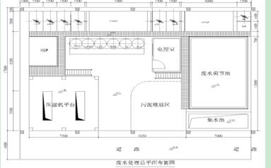
项目名称:含磷废水处理工程
工程概况:污水站接纳的污水来源有磷化液、工件漂洗水、酸洗废水、碱洗除油废水以及其它废水等。
合作客户:绿点科技(无锡)有限公司
无锡绿兴科技有限公司
处理工艺:二级钙盐混凝沉淀法全自动处理工艺
排放标准:污水综合排放标准(GB8978-1996)三级

项目名称:含磷废水处理工程
工程概况:污水站接纳的污水来源有磷化液、工件漂洗水、酸洗废水、碱洗除油废水以及其它废水等。
合作客户:绿点科技(无锡)有限公司
无锡绿兴科技有限公司
处理工艺:二级钙盐混凝沉淀法全自动处理工艺
排放标准:污水综合排放标准(GB8978-1996)三级